Vacant Mental Health Trust land to house district heating plant
Published 9:44 pm Saturday, December 3, 2016
A key piece of waterfront land in downtown Juneau is about to change hands, and its soon-to-be owners have plans that they think will help bring about the city’s “renaissance.”
Keith Comstock, president and CEO of Juneau Hydropower Inc., has entered an agreement with the Alaska Mental Health Trust Authority to buy the piece of land between the Juneau Arts and Culture Center and U.S. Coast Guard Station Juneau.
Operating as Develop Juneau Now LLC, a company he owns outright, Comstock will buy the roughly one-acre lot for about $1.3 million. There, he plans to build North America’s first seawater heat pump district heating facility.
“This is going to change the heating economics of downtown,” said Duff Mitchell, managing director of Juneau Hydropower and Juneau District Heating. “We’re working on the renaissance of Juneau.”
The sale isn’t finalized yet, but the Mental Health Trust’s board has approved the sale, and the trust’s executive director, “is cool with it,” Comstock said Friday. The trust still has to put out a public notice about the sale, but provided nothing goes sideways for Comstock and company, the building that will house the heating plant should be complete within the next two years.
Comstock and Mitchell have been in land negotiations for their district heating plant for the past two years. They explained Friday that there could hardly be a better site for the project than the vacant trust land in Juneau’s subport subdivision.
It’s centrally located, and (perhaps more importantly) it’s located close to the water. Both requirements need to be met in order to make their district heating project work, Comstock and Mitchell explained Friday afternoon.
The plan will work by drawing cold seawater out of Gastineau Channel. It will then run that water through a heat pump, which essentially works like a refrigerator in reverse. The heat pump will extract the latent heat of the water and distribute that heat to buildings in the downtown core.
Volatility in the price of other fuel sources, such as oil, creates dips and spikes in heating costs. Heating oil is cheaper now than it has been in the past, but that might not be the case forever. Because seawater will be the primary fuel source for the plant, and because Gastineau Channel isn’t likely to run dry anytime soon, Comstock and Mitchell said that their plant will be able to provide consistently priced heat.
“We’re basically providing energy security for Juneau forever,” Comstock said.
Using a yet-to-be-laid network of piping, the district heating plant will be able to heat 80 to 85 percent of the homes and businesses in Juneau’s downtown core. They hope to meet that goal by the end of 2019.
Though district heating plants are ubiquitous in Europe, Comstock’s plan to bring one to Juneau is ambitious. The building alone will cost $12 million to $15 million, and that’s before the heat pump technology and infrastructure build-out is factored in. That will cost tens of millions more.
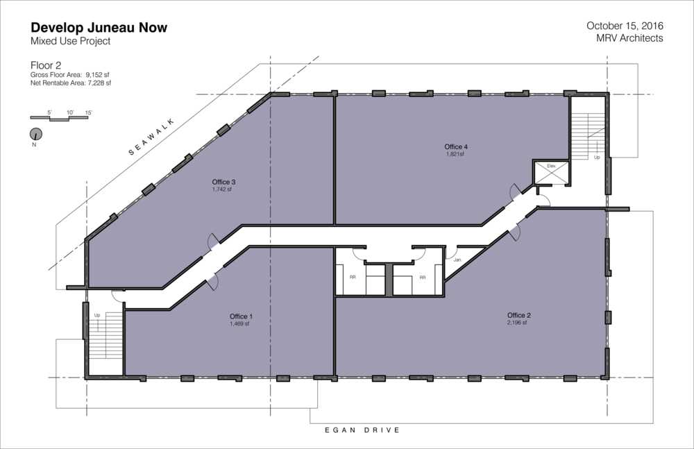
But even if the district heating plant was removed from the equation, Comstock is confident that purchasing the Mental Health Trust land was a good investment. That’s because the nearly 30,000-square-foot building he plans to build just off of Egan Drive will house more than the heating plant.
The three-story facility will also include commercial retail space, several offices and nine “showcase, high-quality apartments,” according to Paul Voelckers, president of MRV Architects, the firm designing the building. The design of the building is still subject to change; if the economics pencil out, Comstock might add a fourth floor with more apartments, Voelckers said.
But one thing is for sure: The building won’t look like a power plant.
“There’s no sign of big industry,” Voelckers said Friday. “There’re no big smokestacks or anything.”
Comstock has been open about his plans to build a district heating plant for a couple years, but until Thursday, when he incorporated as Develop Juneau Now LLC with the state Department of Commerce, he had been keeping the location of the plant relatively secret. He initially incorporated Develop Juneau Now LLC in New Mexico, where privacy laws for corporate filings are stricter than they are in Alaska, allowing him additional anonymity.
“We weren’t trying to pull the wool over anybody’s eyes,” he said. “My way of doing business is to keep my mouth shut until I can’t be quiet any longer.”
• Contact reporter Sam DeGrave at 523-2279 or sam.degrave@juneauempire.com.
Correction: An earlier version of this article stated that the size of the vacant Mental Health Trust lot was two acres. It is only about an acre.
